
90門窗系統產品可適用于節能房屋,纖細的可視面外觀突顯了產品設計的質感。經過優化的模塊化產 品系統,使加工環節簡單快捷。
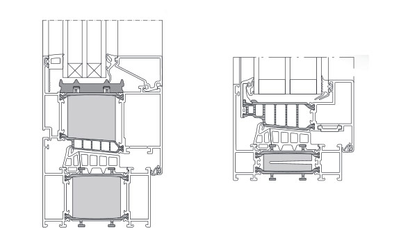
纖細的型材可視面寬度,90mm的框型材厚度和100mm的扇型材厚度,使居室享有更明亮的光線以及更具設計感的裝飾線條。多種隔熱組合形式可以滿足現代化以及可持續型建筑物的節能要求。
4000080827/15210415183
霍柯特別重視產品加工環節的便捷高效,這也是為什么門窗系統的內外腔型材尺寸相一致,可實現系統的模塊化操作。霍柯成功的在Lambda duo系列中將諸多元素結合在一起,并達到被動屋的節能標準。纖細的型材可視面寬度,90mm的框型材厚度和100mm的扇型材厚度,使居室享有更明亮的光線以及更具設計感的裝飾線條。多種隔熱組合形式可以滿足現代化以及可持續型建筑物的節能要求。